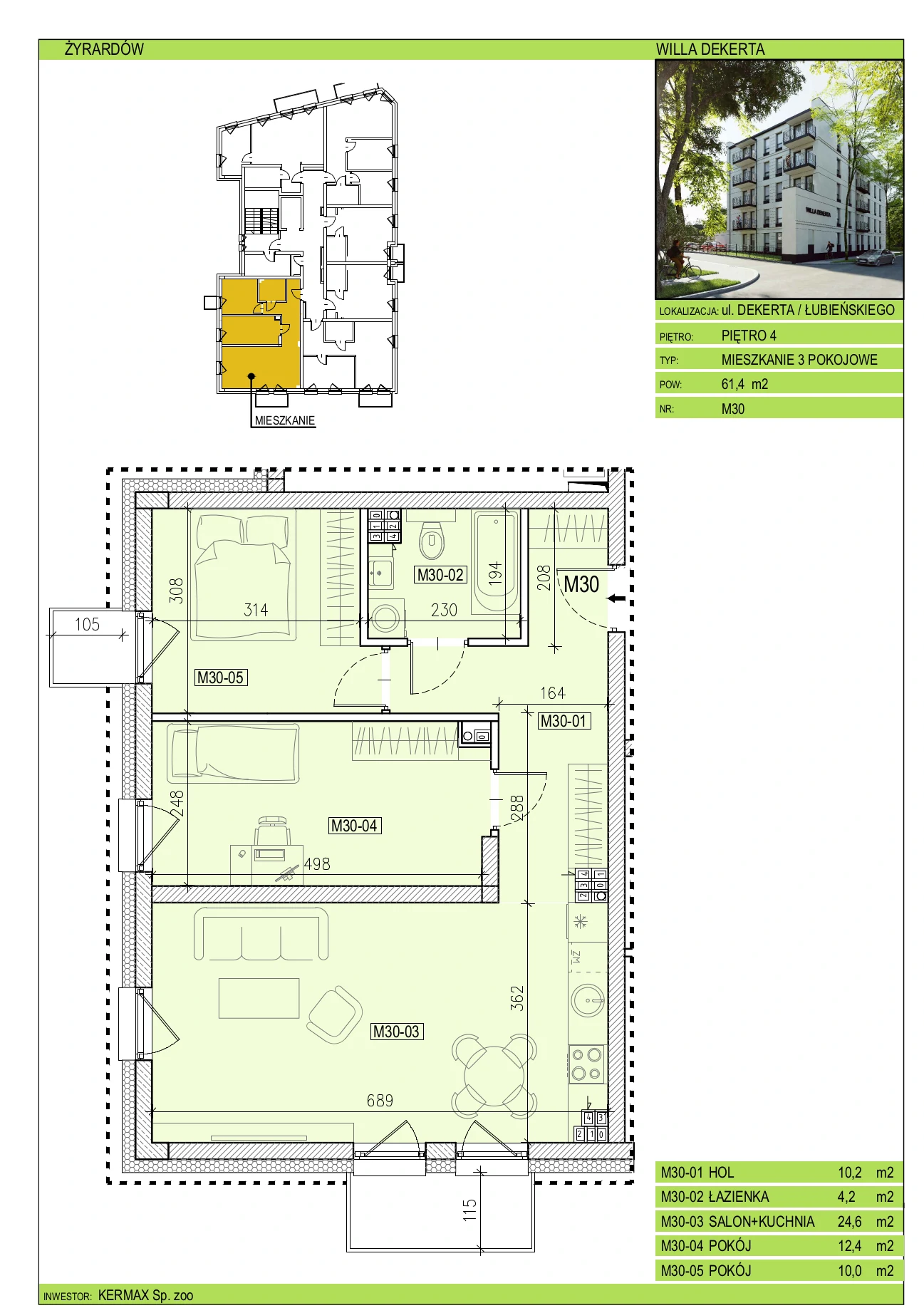
Mieszkanie nr 30

  • 61,4 m2
  • Beds: 3 pokoje
  • Baths: balkon
  • Sq Ft: Nr 30
Willa Dekerta mieszkanie - rzut z góry

Opis mieszkania

Mieszkanie trzypokojowe zlokalizowane na czwartym piętrze. Całkowita powierzchnia 61,4 m2. Mieszkanie składa się z salonu połączonego z kuchnią o powierzchni 24,6 metra kwadratowego, dwóch dodatkowych pokoi o powierzchni 12,4 oraz 10 metrów kwadratowych. Oprócz tego jest łazienka oraz hol.

Zadaj pytanie przez formularz

  • Metraż: 61,4 m2
  • Kondygnacja:
  • Liczba pokoi: 3 pokoje
  • Udogodnienia: balkon
  • Nr Mieszkania: Nr 30
← Powrót do strony głównej